Lieu : Montaigu-Vendée, Programme : Construction de 11 classes maternelles et élémentaires, accueil périscolaire, bibliothèque et salle de motricité, Période : 2023 - 2025, Surface : 1885 m2, © Photos : Juan Cardona
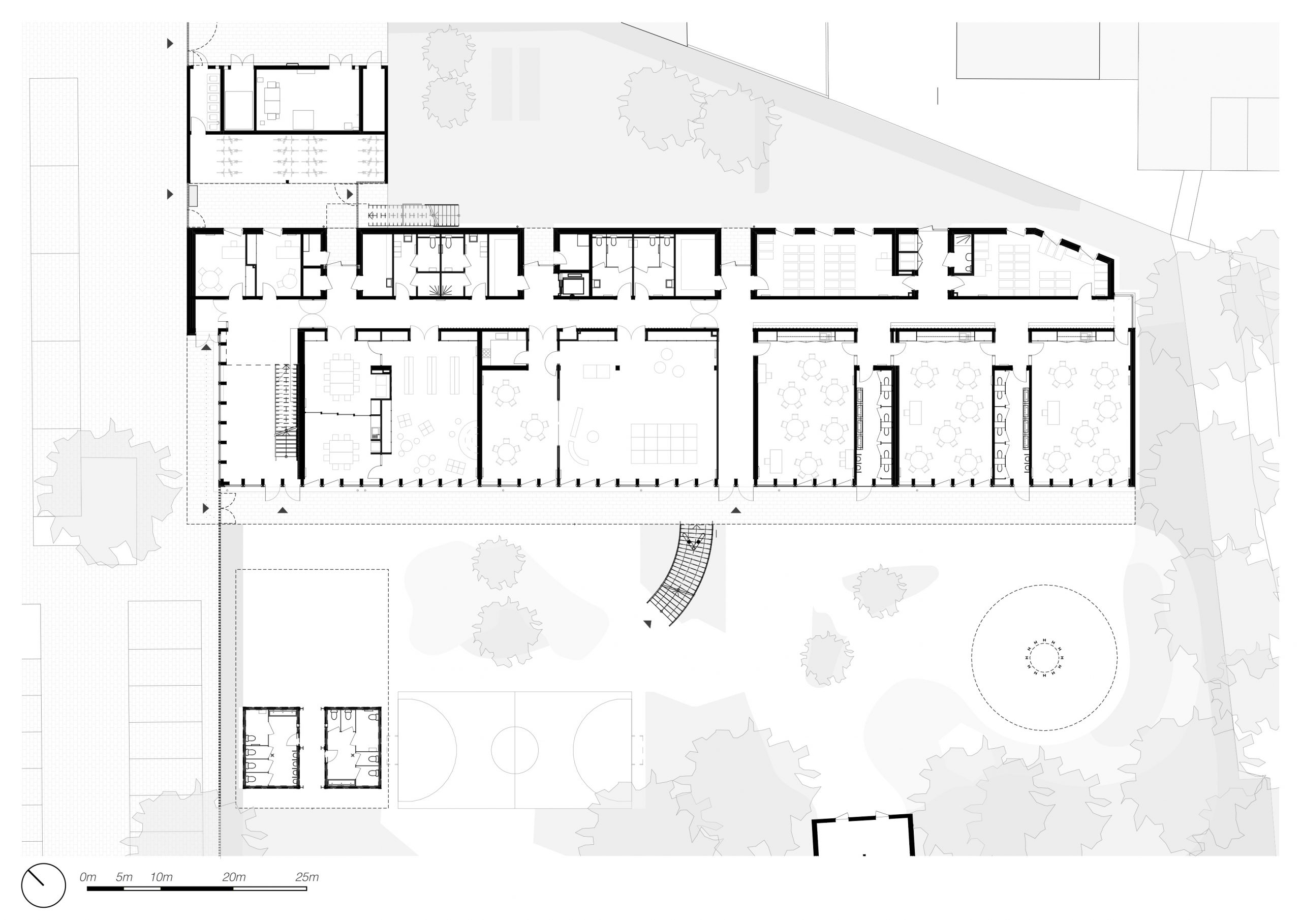
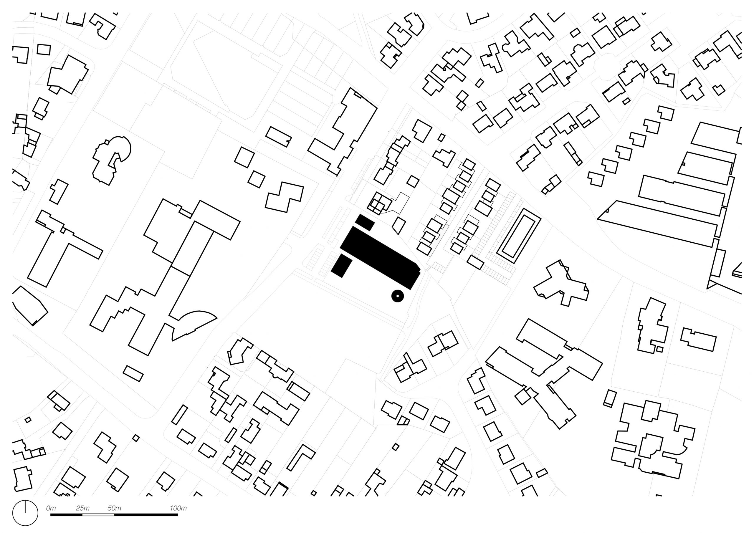
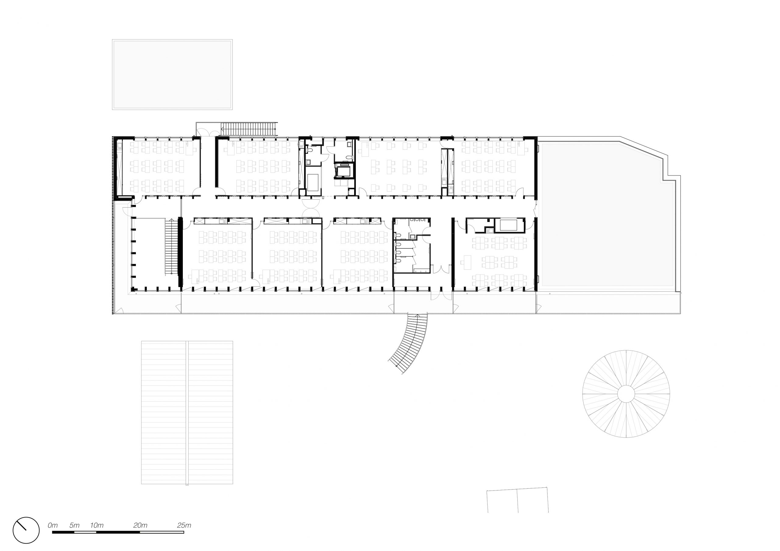
Le projet s’inscrit sur l’ancien site de la cité de l’Aurore, marqué par la démolition de cinq tours. Il s’implante comme un équipement public majeur au cœur d’un tissu pavillonnaire dense et amorce une nouvelle séquence urbaine cohérente, préfigurant la réalisation de logements futurs au sud de la parcelle. Le bâtiment s’étire dans la longueur du terrain. Il présente son pignon sur la rue qui affirme l’entrée et construit le vide du parvis comme un espace identifiable et fédérateur. Son orientation Nord-Est/Sud-Ouest optimise l’ensoleillement naturel et permet aux salles de bénéficier d’un accès direct et généreux sur les cours arborées. Les coursives et casquettes prolongent les espaces intérieurs vers l’extérieur, assurent une protection solaire efficace et fluidifient les circulations par des cheminements annexes extérieurs.
Compact et lisible, le projet propose une organisation interne évidente. La conception associe béton, structure bois, isolants biosourcés et bardage en mélèze, affirmant une démarche rationnelle, durable et élégante.

